Method Cycles:
Information:
Location: Lincoln, NE
Project Type: Coffee, Bar, Bike - Proposal Year: Fall 2020
Project Brief:
Proposed design for Method Cycles located in downtown Lincoln, NE. The goal was to double their current space to house a larger bike shop, coffee shop, and a separate bar counter located in the basement.
Job Duties:
Throughout this proposed project, I drew on my expertise in both architecture and interior design, which is reflected in the final design solution.
Room Tags:
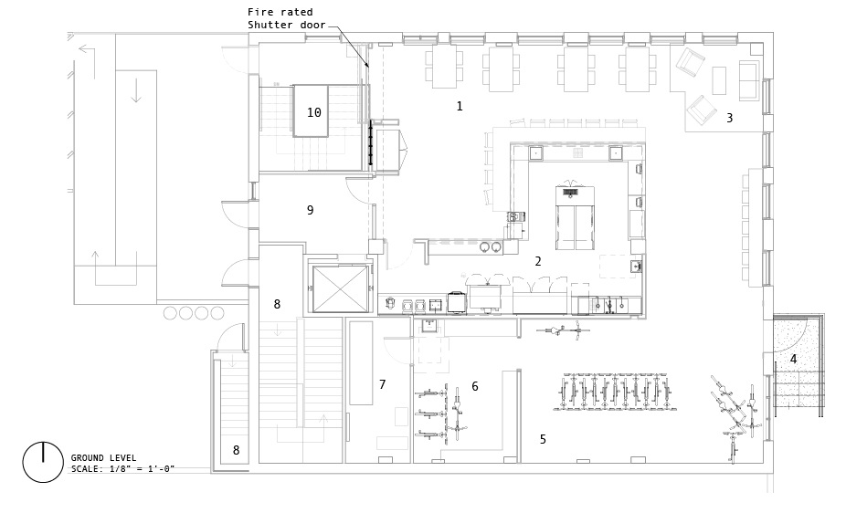
Ground Level:
1. Seating
2. Bar, Coffee, Kitchen
3. Raised seating area
4. New entry stairs
5. Bike shop
6. Mechanic bench
7. Mech./Storage
8. Fire stairs
9. Vestibule
10. Open stairway
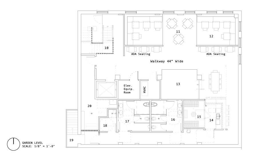
Garden Level:
11. Multi-purpose space
12. Raised seating area
13. Stage
14. Bar
15. Cooler
16. Women’s Restroom
17. Men’s Restroom
18. Cleaning Closet
19. Fire Stairs
20. Mech./Storage
Ground Level:
1. Seating
2. Bar, Coffee, Kitchen
3. Raised seating area
4. New entry stairs
5. Bike shop
6. Mechanic bench
7. Mech./Storage
8. Fire stairs
9. Vestibule
10. Open stairway
Garden Level:
11. Multi-purpose space
12. Raised seating area
13. Stage
14. Bar
15. Cooler
16. Women’s Restroom
17. Men’s Restroom
18. Cleaning Closet
19. Fire Stairs
20. Mech./Storage


Existing Space:


Renders: