Old Glory:
Information:
Location: Clarksville, TN
Project Type: Brewery & Restaurant
Year: Spring 2023
Project Brief:
Job Duties:
Job Duties:
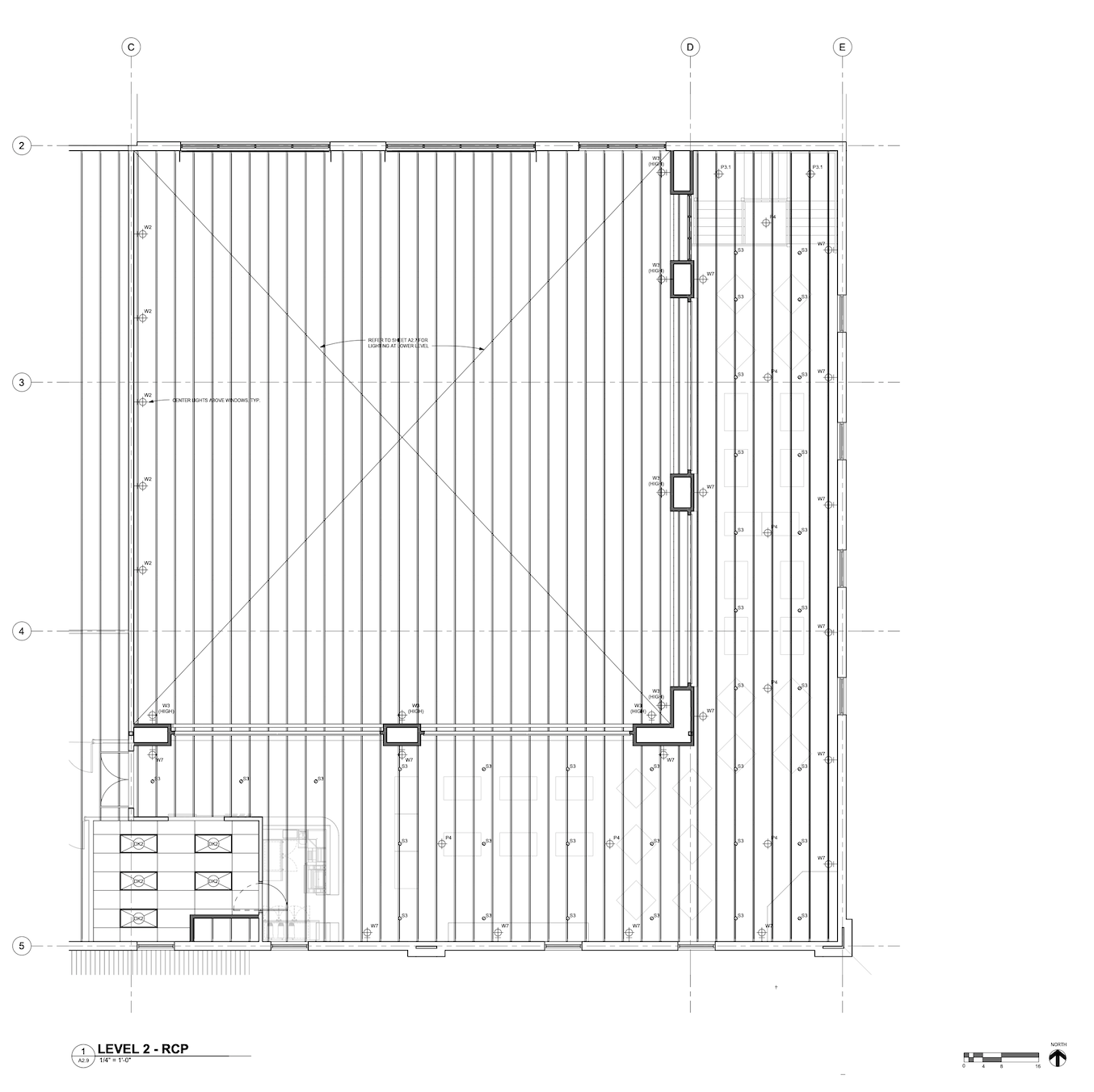
Proposed design for Old
Glory’s distillery located in Clarksville, Tennessee. The distillery’s goal was
to double their current space to house more of their fine whisky, bourbon, and restaurant
within an old 20,000 sqft. warehouse.
Shown throughout the proposed project, I incorporated my knowledge both in architecture and interior design to work on parts of each phase of the project, including the demo, furniture, and Finish plan.
Shown throughout the proposed project, I incorporated my knowledge both in architecture and interior design to work on parts of each phase of the project, including the demo, furniture, and Finish plan.
Demo Plans:
Scale: 1/8” = 1’-0”
Scale: 1/8” = 1’-0”
Finish Plan:
Scale: 1/4” = 1’-9”
Scale: 1/4” = 1’-9”

Enlarged Building Plans:
Scale: 1/4” = 1’-0”
Scale: 1/4” = 1’-0”

